О согласовании установки ограждающих устройств для регулирования въезда и (или) выезда транспортных средств на придомовую территорию по адресу: улица Оршанская, дом 9
№:
43-8
от:
Статус принятия:
Решение принято
Решение:
В соответствии с пунктом 5 части 2 статьи 1 Закона города Москвы от 11.07.2012 года №39 «О наделении органов местного самоуправления муниципальных округов в городе Москве отдельными полномочиями города Москвы», Совет депутатов муниципального округа Кунцево решил:
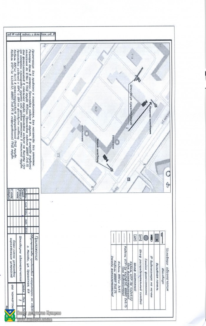
- 1. Согласовать установку ограждающих устройств (два шлагбаума) для регулирования въезда и (или) выезда транспортных средств на придомовую территорию по адресу: улица Оршанская, дом 9 (Приложение).
- 2. Копии настоящего решения направить в Департамент территориальных органов исполнительной власти города Москвы и в управу района Кунцево в течение трёх дней со дня его принятия.
- 3.Опубликовать настоящее решение в бюллетене «Московский муниципальный вестник» и разместить на официальном сайте муниципального округа Кунцево — www.kuntsevo.org.
- 4.Контроль исполнения настоящего решения возложить на главу муниципального округа Кунцево В.А.Кудряшова.

Скан решения:
Заседания:
Совет депутатов Кунцево
Корреспонденция
|   | Рег. номер | Ведомство \ организация | Дата отправки | Статус ответа |
|---|---|---|---|---|
Вызов депутатов в прокуратуру по сложившейся ситуации с рассмотрением решений по шлагбаумам | 86-02-2021 | Кунцевская межрайонная прокуратура | Ответ получен |
